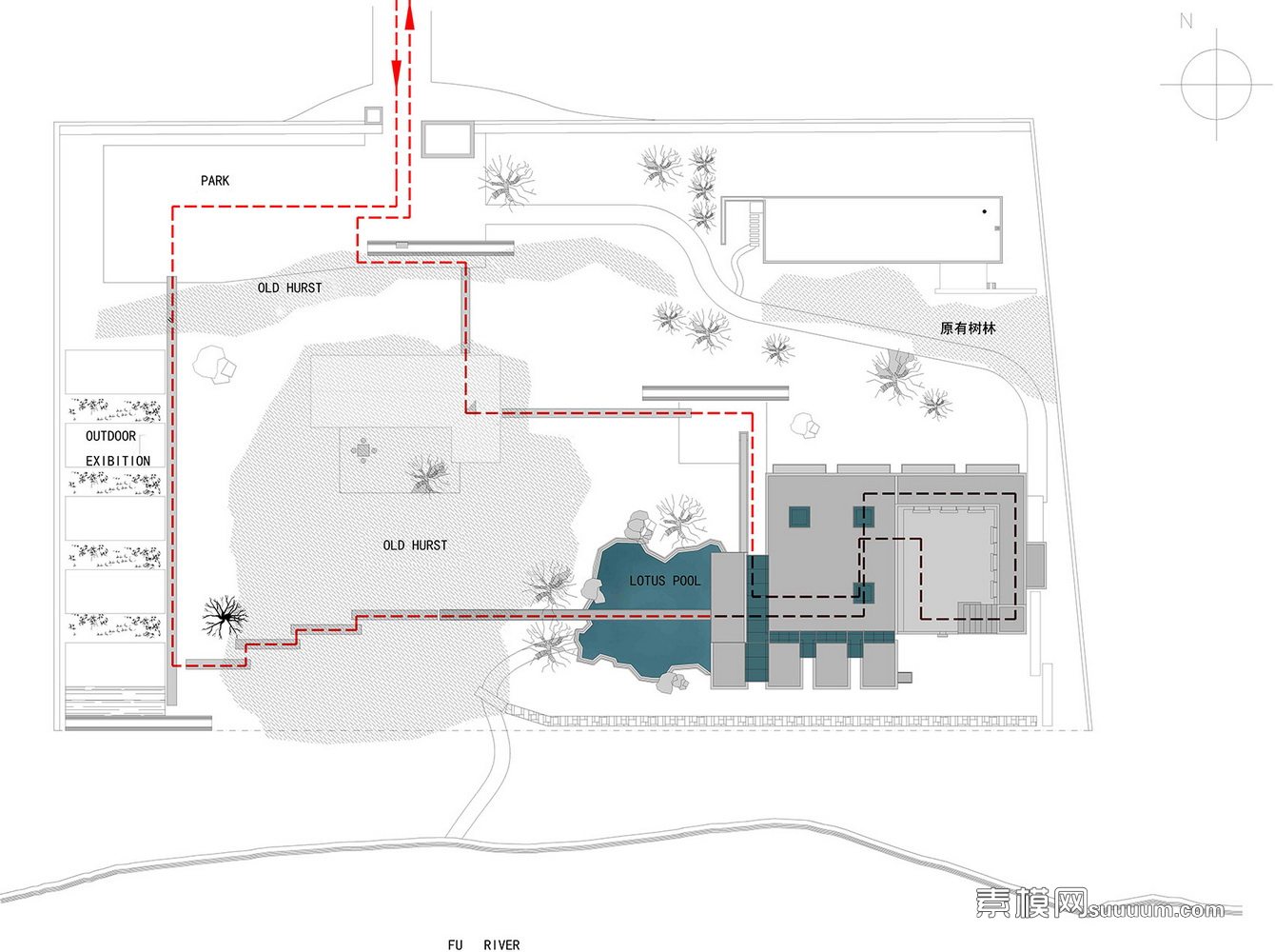
托马车小火斯 普通会员 鹿野苑石刻艺术博物馆+CAD平立剖SU模型 ID:293536 复制 ¥2.6 大小:0.79MB 版本:sketchup8.0 渲染:无 时间:2024-10-22 立即下载(支持扫码或充值下载) 收藏纠错版权申诉 温馨提示:当前页展示的效果图或实景照片仅供参考,模型详情以模型截图为准,付费模型重复下载30天内免费