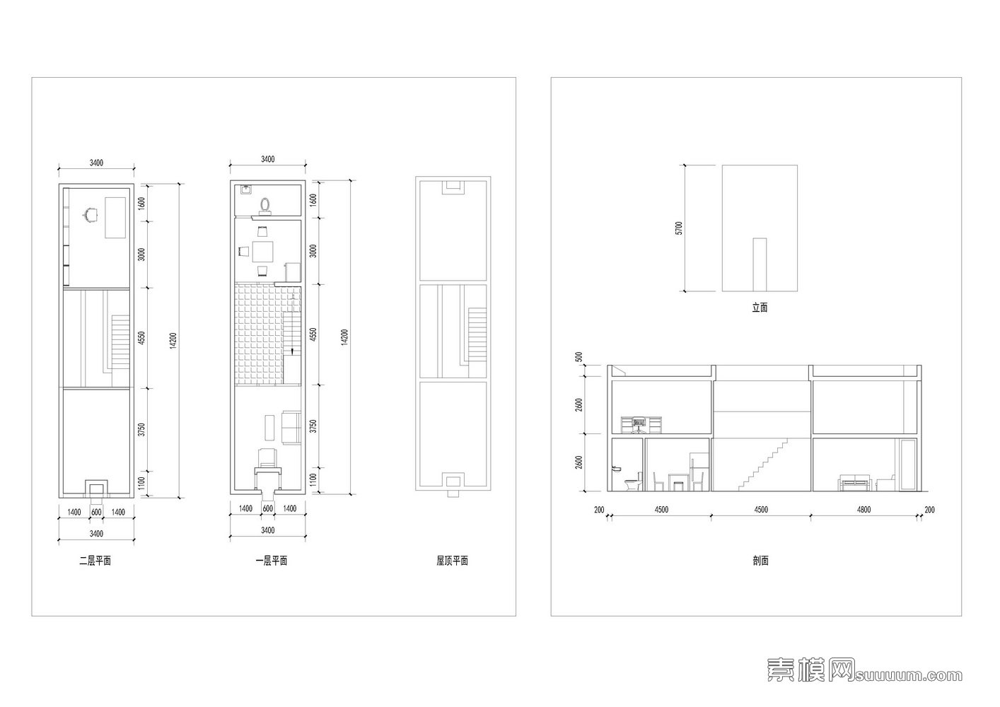
Data 普通会员 安藤忠雄住吉的长屋SU模型 ID:208742 复制 ¥0 大小:19.74MB 版本:sketchup8.0 渲染:无 时间:2023-4-28 立即下载(支持扫码或充值下载) 收藏纠错版权申诉 温馨提示:当前页展示的效果图或实景照片仅供参考,模型详情以模型截图为准,付费模型重复下载30天内免费